?村民朋友们?
一起来涨姿势!

小贴士
积极收集和介绍村庄规划案例,是中国城市规划学会乡村规划与建设学术委员会(“乡村委”)自成立起即着眼的重要工作之一。乡村委在2019年度将重点介绍“全国优秀城乡规划设计(村镇规划类)”中的部分乡村规划获奖项目。为更好的推广,我们将不断收集整理有关案例,并陆续推送,欢迎村民朋友们反馈意见分享心得。

编制单位
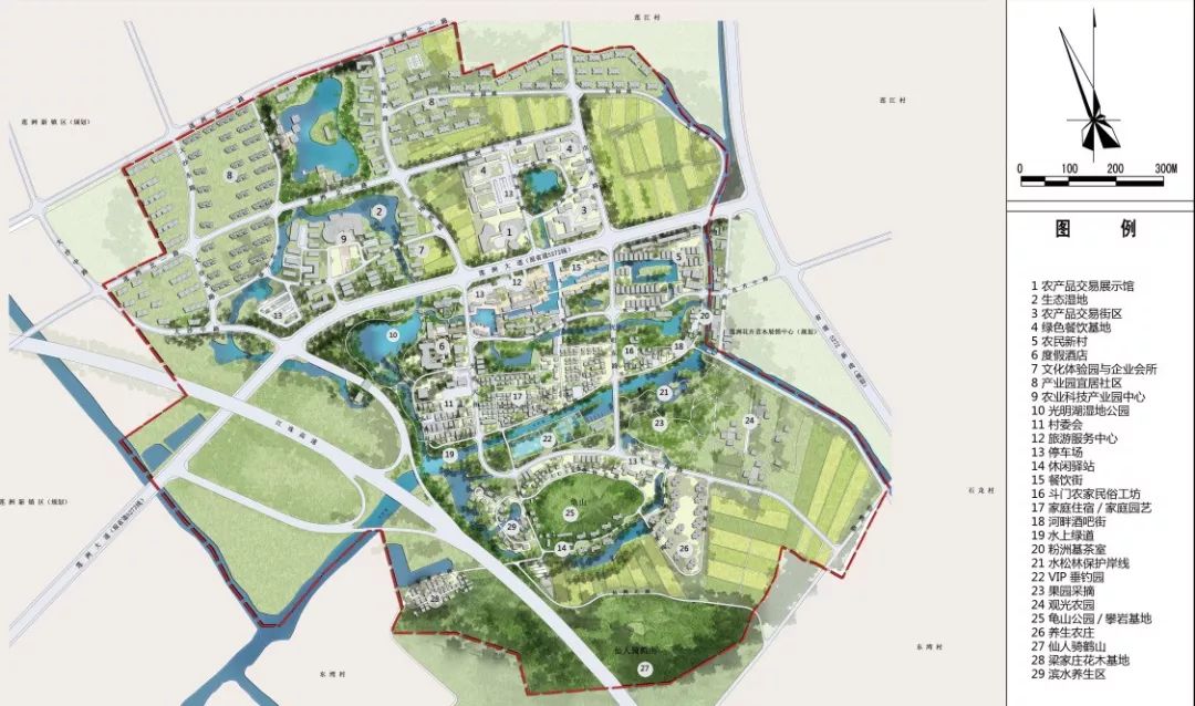
珠海市规划设计研究院
获奖情况
2015年度全国优秀城乡规划设计(村镇规划类)三等奖
设计人员
谭文杰、戴伟贤、陈德绩、罗文君、潘裕娟、向守乾、王妍、江文亚、黄日谐、刘利霞、朱艳芳、张一恒、李吉墉、张婷婷、洪寅斌
1
1
FIRST
项目背景
1
项目背景
新型城镇化的核心在于城乡统筹着眼农民、涵盖农村,实现城乡基础设施一体化和公共服务均等化,为此国家、广东省及珠海市均出台了推进农村建设发展的政策文件,而且珠海市对自身提出了更高的要求,创造生态文明示范市、建设国际环境宜居城市,这些都要求着对全市的村居进行统筹,并有序引导城乡协调、村居差异化发展,指导村居。

2
规划范围
规划范围为全市209个村居,包括全市122个行政村和87个具有农村性质的社区,其中,斗门区村居最多。

SECOND
规划主要内容
规划目标与原则
1
规划目标
在城市总体规划的指导下,从城乡统筹考虑,协调209个村居的规划建设,规划提出避免平均用力、重复建设和资源浪费,使村居各具特色的三大目标,为今后指引下一步各幸福村居规划与建设工作。
2
规划原则
? 国际标杆,适度超前
? 城乡一体,共建共享
? “一村一品”,彰显特色
? 因地制宜,分类指导
? 经济可行,集约建设
? 分期实施,有序推进
五大统筹
1
统筹区域性共建共享设施
首先,统筹市、区、镇层面各级公共服务设施和市政基础设施,构建城乡设施的共建共享体系。
其次,确定村居共用设施,避免资源浪费。
再者,加快城乡公共服务设施的建设,推进城乡基本公共服务的均等化。例如:根据村居区位、人口、设施服务规模、服务半径等因素统筹安排综合设定;



2
统筹村居推进时序
规划制定村居分期建设计划,第一方阵,从符合政府推动积极、村民参与热情、基础条件较好,村居特色明显等四个方面进行筛选示范村,第二方阵村居是条件情况及第一方阵经验逐步推进,示范村居从四个方面塑造示范,包括特色风貌、生态建设、用地整理、综合改革。

示范村居分布图
3
统筹村居设施配建标准
依据珠海规范和村居建设指引,参考国内农村设施配建标准,对城镇地区村居和农业地区村居分别从公共设施和市政基础设施两个方面提出相应的配建标准。

4
统筹村居发展方向
结合各村居的区位条件、环境特征、特色资源和发展潜力等因素,提出村居发展方向,包括:保留发展方向村居、城镇化方向村居、优化提升方向村居。


村居发展方向指引图
5
统筹村居建设考核指标
根据省市相关政策文件,按不同类型村居从四个方面(舒适性、健康性、方便性、安全性)构建各类型村居的村居建设考核指标体系。各项内容的要求及数值,均采用省市文件中的最高标准。

两个指引
1
村居布局建设指引
包括:建设用地控制、村居风貌设计、生态环境保护、历史文化保护、村庄改造重点、防灾减灾要求等。

顺应地势和尊重自然示意图
2
村居建筑建设指引
对水乡型、山区型、田园型、古村落型、海岛型、城郊型、工业园区周边型等不同类型的村居,结合各自特色提出建设意向和建筑效果,提供村民建房参考。

适用于田园型农业村
两个建议
1
产业发展建议
结合《珠海市农业发展规划》,在全市层面出对不同地区提出产业空间布局和产业经营模式建议,提高土地生产效益、突出特色产品品牌、增加农民收入。

2
土地流转实施建议
根据国家及地方的关于农村土地流转相关政策规定,对农用地和集体建设用地提出流转实施建议,整合土地资源,提高土地生产效益、增加农民收入。

建设用地流转模式
农用地流转模式
THIRD
特色与创新
1
促进探索新路:
以创建幸福村居
为城乡统筹探索新路
创建幸福村居为珠海的城乡统筹发展提供了好的切入点。
珠海以幸福村居为抓手,全面、系统地推进城乡一体化发展,实际上也在为城乡统筹探索一条科学发展的新路。

2
完善体系:
完善规划体系,
为村居发展提出明确指引
首次以村居建设发展为对象的总体规划,是城市总体规划的有益补充,是真正实现城乡规划全覆盖的的一次探索,也是广东省首个“农村”总体规划。

3
政策精研:
贯彻国家、省、市政策要求
国家一号文件连续十一年聚焦“三农”,广东省打造“幸福广东”、 建设“幸福村居”,珠海市高度重视“幸福村居”建设工作。

4
统筹全面:
覆盖全市村居,
全面指导村居规划建设
规划覆盖了除城中村外的全市所有村居,并从服务设施、城乡风貌、村居发展方向、建设指引、产业与土地方面建议等方面对村居规划建设情况进行统筹。

FOURTH
实施效果
1
总体指引:
有效指导幸福村居规划
编制及建设内容
目前,珠海市共209个村居已按照总体规划指引下,有序组织分期开展,基本实现村居规划的全覆盖。此外,在总体规划指导下,配套编制的相关技术指引发挥了重要作用。

2
全面覆盖:
公共服务设施与市政基础设施
逐步实现城乡均等化
在总体规划指引下,已实现教育、医疗、文体活动、环卫、市政公用、社会保障、村镇规划师已基本实现农村地区全覆盖。

3
初显成效:
部分示范村居规划建设效果良好,
掀起热潮
目前,53个村居已经率先按规划要求开展了村居建设工作;经过多轮竞争评选出了22个示范村,获得重点扶持资金,进行试点突破;其中南门村、南澳村、莲江、海澄村等部分村居已取得良好成效,村居面貌得到了有效提升。




4
获得好评:
村民积极响应、游客游玩尽兴、
政府高度评价
创建幸福村居,不仅让村民尝到甜头积极参与,还带动了乡村旅游发展,此外,规划多次获广东省领导好评,并选取了珠海示范村居召开了珠三角新农村建设探讨会。

5
成绩突出:
推动珠海国际宜居城市建设,
丰富宜居内涵
珠海把农村发展作为城市发展战略的重要部分,突出乡村生活生态美,与城市的浪漫、精致、优美相得益彰,互为呼应,共同组成了宜居城市丰富的内涵、增添独特魅力,助力珠海屡获殊荣。

城与自然共融

乡与自然和谐
1
END
1
图文整理 | 杨犇
编辑 | 孙一休

村庄规划案例系列?
【村庄规划案例76】江苏省优化镇村布局规划试点(金坛、高邮)
【村庄规划案例75】内蒙古呼和浩特市水磨村村庄改造规划
【村庄规划案例74】江苏省南京市江宁区谷里街道公塘社区公塘村庄建设规划
【村庄规划案例73】四川省雅安市名山区灾后恢复重建规划(2013-2015年)新村安置点详细规划
【村庄规划案例72】云南省大理市喜洲镇桃源村村庄规划
【村庄规划案例71】云南省昆明市域传统风貌村镇调查及保护策略研究
【村庄规划案例70】四川省成都市金堂县赵家镇平水桥村扶贫规划
【村庄规划案例69】贵州省贵阳市乌当区“美丽乡村”示范带规划(2014-2025)
【村庄规划案例68】北京市海淀北部地区拟保留村庄规划发展研究
【村庄规划案例67】“五彩田园”现代特色农业示范区总体规划(2014-2020)
【村庄规划案例66】江苏省南京市浦口区永宁街道大埝村村庄建设规划
【村庄规划案例65】河北省安新县环白洋淀地区乡村建设总体规划
【村庄规划案例64】上海市青浦区朱家角镇张马村村庄规划
【村庄规划案例63】浙江省改善农村人居环境规划(2014-2020年)
【村庄规划案例62】《宁波市走马塘历史文化名村保护规划》实施导则
【村庄规划案例61】广东省珠海市红旗镇三板村幸福村居建设规划
【村庄规划案例60】重庆市石柱县鱼池镇巴渝新居岩口居民点建设规划
【村庄规划案例59】上海市奉贤区金汇镇梁典村居民点详细规划
【村庄规划案例58】中国银川设施园艺产业园规划设计
【村庄规划案例57】安徽省六安市舒城县舒茶镇山埠村山埠中心村美好乡村规划
【村庄规划案例56】广东珠海莲洲八村乐幸福村居组团协调规划
【村庄规划案例55】黑龙江省哈尔滨市依兰县道台桥镇永丰村建设规划
【村庄规划案例54】新疆乌鲁木齐县永丰乡公盛村2小队村庄规划设计
【村庄规划案例53】河北省保定市高碑店市陶辛庄新民居规划
【村庄规划案例52】重庆市石柱县三河镇拱桥农民新村规划
【村庄规划案例51】美丽乡村建设之探索与实践
【村庄规划案例50】上海市崇明区新河镇卫东村村庄规划设计
【村庄规划案例49】广东省珠海市三灶镇海澄村幸福村居建设规划
【村庄规划案例48】上海市金山区廊下镇万亩设施良田动迁安置小区规划设计
【村庄规划案例47】山东省济南市历城区港沟街道芦南村发展建设规划
【村庄规划案例46】广东省珠海市万山区担杆村幸福村居建设规划
【村庄规划案例45】湖南省永州市东安县烟竹村概念性村庄规划设计
【村庄规划案例44】宁波市北仑区柴桥紫石片区大河洋新农村建设规划
【村庄规划案例43】哈尔滨市呼兰区双井镇护路村改造规划
【村庄规划案例42】云南省大理市洱源县梨园村保护规划方案
【村庄规划案例41】广州市增城区仙村镇西南村村庄规划建设实践
【村庄规划案例40】海南省东方市大田镇报白村村庄建设规划
【村庄规划案例39】银川市通贵乡总体规划
【村庄规划案例38】珠海市唐家湾镇会同社区幸福村居建设规划
【村庄规划案例37】浙江省杭州市长河来氏聚落再生设计
【村庄规划案例36】上海市青浦区金泽古镇保护与再生设计
【村庄规划案例35】珠海市斗门区白蕉镇孖湾村幸福村居建设规划
【村庄规划案例34】重庆市南川区古花乡天池美丽乡村建设规划
【村庄规划案例33】海南三亚市槟榔河乡村旅游总体规划
【村庄规划案例32】内蒙古巴林左旗后兴隆地村整治规划
【村庄规划案例31】吉林省长白县鸡冠砬子村村庄规划——欠发达地区村庄的转型发展
【村庄规划案例30】珠海市斗门区斗门镇南门村幸福村居建设规划
【村庄规划案例29】宁波市北仑区柴桥街道紫石片区新农村建设规划
【村庄规划案例28】山东省章丘市旭升村新农村建设规划设计
【村庄规划案例27】苏州市相城区渭塘镇凤凰泾村保留村庄规划
【村庄规划案例26】天津蓟县西井峪村国家级历史文化名村保护规划
【村庄规划案例25】江西安义千年古村群的保护规划与实践
【村庄规划案例24】黑龙江省富裕县三家子传统村落保护发展规划
【村庄规划案例23】云南红河哈尼族彝族自治州泸西县秀美村庄发展规划
【村庄规划案例22】广东省从化市良口镇仙溪村灾后重建规划
【村庄规划案例21】政府主导下的村庄保护与更新实践-以弥勒市可邑村为例
【村庄规划案例20】河南省登封市大冶镇朝阳沟村“美丽乡村”规划
【村庄规划案例19】安徽岳西水畈村美好乡村规划设计
【村庄规划案例18】浙江省台州市黄岩区屿头乡:沙滩村“美丽乡村”规划
【村庄规划案例17】新疆叶城县阿亚格乌吉热克村村庄整治规划
【村庄规划案例16】新疆哈密市天山乡头道沟村村庄规划
村庄规划案例15:浙江省安吉县山川乡高家堂美丽宜居示范村建设实践
村庄规划案例14:南京市汤家家生态旅游示范村规划
村庄规划案例13:四川省宝兴县大溪乡曹家村灾后重建规划
村庄规划案例12:授之以渔,本土营造 ——四川凉山马鞍桥村震后重建研究
村庄规划案例11:珠海市斗门区莲江村幸福村居建设规划
村庄规划案例10:珠海市幸福村居城乡(空间)统筹发展总体规划
村庄规划案例9:韶山试验——乡村人居环境有机更新方法与实践
村庄规划案例8:遵义实验——从原生走向可持续发展的乡村有机更新
村庄规划案例7:贵州省黎平县地扪—登岑侗族传统村落保护与发展规划
村庄规划案例6:重庆市永川区板桥镇历史文化名镇保护与利用规划
村庄规划案例5:广东省广州市花都区塱头村传统村落保护规划
村庄规划案例4:青海省西宁市湟源县东峡乡下脖项村村庄规划
村庄规划案例3:西藏自治区拉萨市尼木县吞达村村庄规划
村庄规划案例2:上海市奉贤区四团镇拾村村村庄规划
村庄规划案例1:新疆巴楚县多来提巴格乡塔格吾斯塘村
崇礼连片美丽乡村总体规划设计
连云港市高公岛街道凰窝村整治规划
泰州市姜堰区兴泰镇西陈庄村美丽乡村规划
案例推介1:湖北省黄冈市蕲春县蕲州镇龙泉庵村养生文化小镇规划


欢迎交流:rural@planning.org.cn

乡村振兴需要你!