您的位置:   网站首页    行业动态    800万美元 纽约买房 曼哈顿中城美籍华裔建筑大师贝聿铭(I.M.Pei)故居出售 屋新天推荐

800万美元 纽约买房 曼哈顿中城美籍华裔建筑大师贝聿铭(I.M.Pei)故居出售 屋新天推荐

阅读量:3817041 2019-10-26


咨询微信:newsky68
咨询电话:718-612-1687(美国)
官网网址:www.unewsky.com
      今年5月,被称为最后一位现代主义建筑大师贝聿铭先生于纽约曼哈顿去世,享年102岁。出生于上世纪广东的贝聿铭先生,在殷实富足的家庭中长大,随全家移民美国,先后毕业于麻省理工学院和哈佛大学建筑系。他从一家房地产开发公司建筑设计起步,经过漫长的职业生涯,获得过建筑界最高荣誉普利兹克奖,最终成为了世界上最受崇敬的建筑师之一。
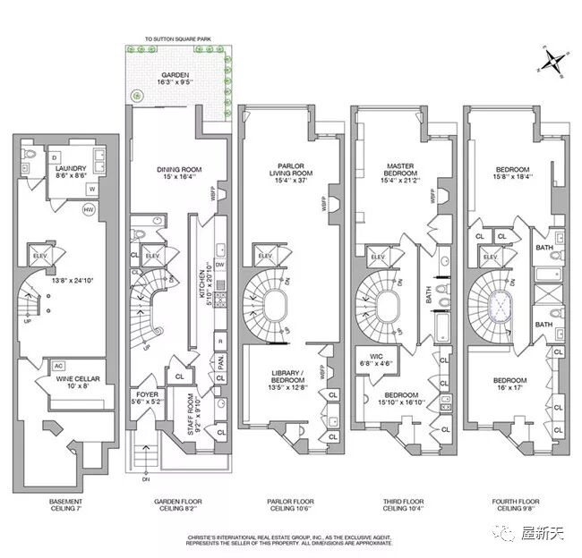
提起贝聿铭先生,一定会想到法国卢浮宫的玻璃金字塔,这座建筑从最初被人质疑到最后被世人赞许,反映出贝聿铭先生对建筑设计的充分自信。在80年代的法国,人们多数仍以古典建筑为傲,是贝聿铭先生通过自己的设计经验积累,大胆而坚持了自己的创新想法,才有了今天大家看到的卢浮宫金字塔。根据贝聿铭先生在纽约的购房时间,以及家中装修设计来推测,或许卢浮宫金字塔的构思雏形在自己家中早已得到实践运用。这座位于曼哈顿中城紧邻东河河畔的独栋别墅是贝聿铭先生和太太Eileen共同生活45年以上的家。房间内的所有装修设计,全部都是由贝聿铭先生完成。这栋出售的故居已上市2天,有条件的买家值得考虑,机会难逢。这栋联排别墅本身建于1899年,贝聿铭先生于1974年买下。整块地16*51平方英尺,建筑物占地16*49平方英尺,室内使用面积3848平方英尺,约357平方米。周围有14座类似的联排别墅成U形包围在萨顿(Sutton)公园,这里形成了私人公园,面朝草坪绿地,宽阔的东河,皇后大桥和浮在河中央的罗斯福岛。无论身在落地窗后或站在园中,无论坐着或躺着,无论什么时间或怎样的角度,眼前的景色都会构成一幅幅油画。现在的这14座别墅主人,各个也都是社会名流。贝聿铭先生的故居,最精彩的地方就是客厅中央的旋转楼梯及顶层中央的天窗,让人马上可以联想到卢浮宫的玻璃金字塔。优美的楼梯间通向每一层的各个区域,这里总共4层楼。一层主要是餐厅,厨房,管家员工室,以及通向私人花园的后院。二层主要是客厅和家庭图书馆。这一层的亮点主要在于塔斯马尼亚的橡木地板,和贝聿铭先生亲自设计的壁炉。室内陈列的艺术品,都将被佳士得公司拍卖。第三,第四层共有4间卧室,面朝河畔的一侧全部都是玻璃落地大窗。在这里是欣赏美景和沉思的好地方。别墅的地下室,被贝聿铭先生设计成豪华的温控酒窖,还有员工休息室。整套别墅里另装有电梯,2个化妆间等。全年地税57682美元。看得出这栋比贝聿铭先生还年长的别墅建筑依然熠熠生辉的矗立在纽约东河畔,外表没有过分的修饰,内部经过贝聿铭先生的精心设计后,全然一副简约现代气息,与楼龄十分不相符。就像贝聿铭先生说过的“没有一件优秀的作品是在瞬间完成的,是可以不经历时间考验的。无论是建筑还是艺术,它最真正的价值最终都只能交给时间去做评判。时间对我的创作来说至关重要。”






























Design by Unewsky .Unauthorized reproduction and reprinting is prohibited. Some pictures and information are from Website. Unauthorized forwarding, copying or distribution is prohibited and may be unlawful.If you are concerned that we may have violated your rights, you may contact us .(G)

在线QQ咨询,点这里

QQ咨询

微信服务号